Son güncelleme: 17.11.2025
Her yeni sürüm, SOLIDWORKS kullanıcıları için yalnızca bir güncelleme değil; tasarım alışkanlıklarını yeniden şekillendiren bir adım. SOLIDWORKS 2026, bu adımı her zamankinden daha güçlü atıyor. Yapay zekâ destekli araçlar, performans odaklı geliştirmeler ve yenilenen kullanıcı deneyimiyle tasarım sürecine yepyeni bir tempo kazandırıyor. Gelin, SOLIDWORKS 2026 ile mühendisliğin yaratıcılıkla buluştuğu bu heyecan verici yeniliklere yakından bakalım.
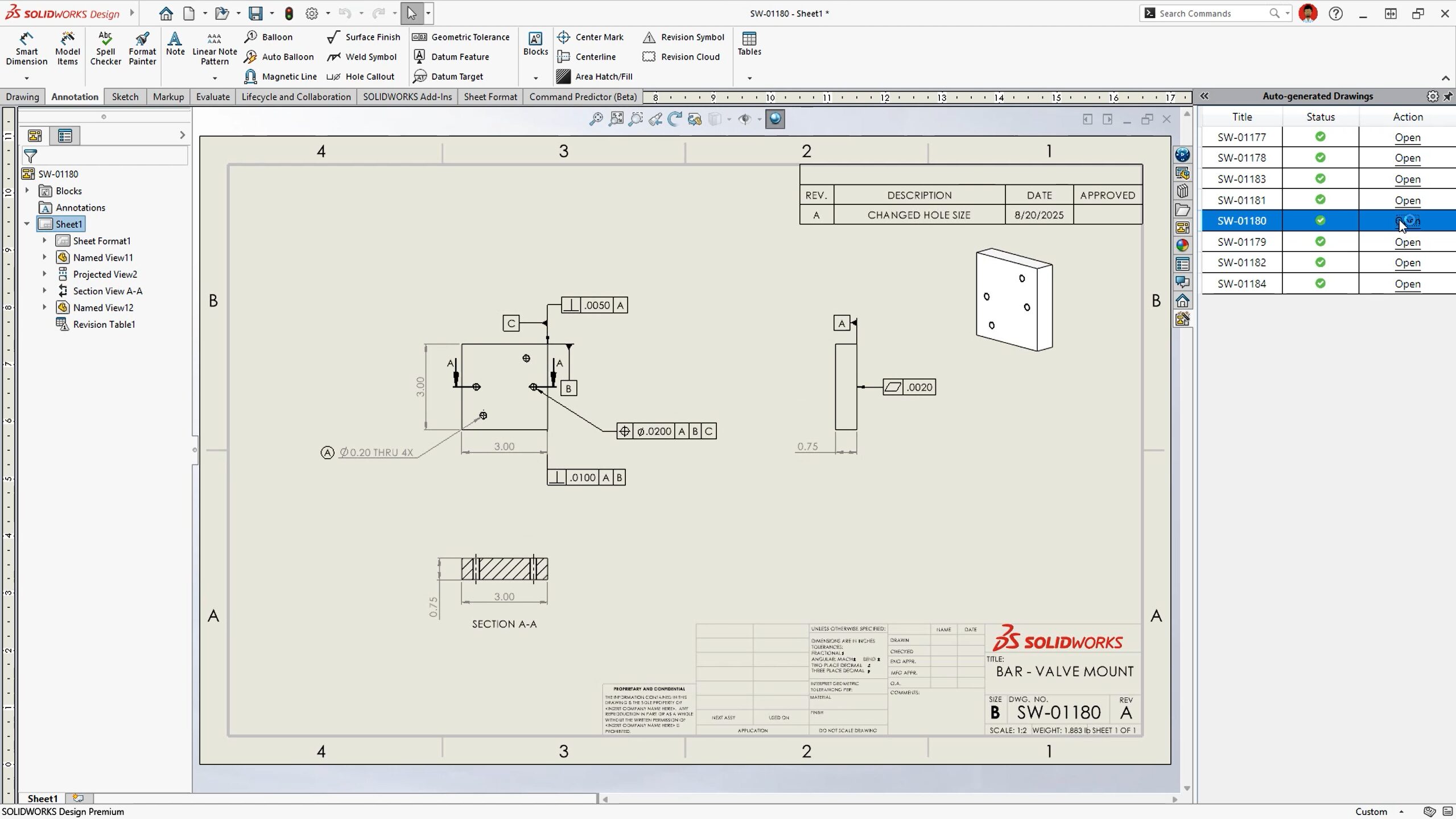
1.Otomatik Teknik Resim Oluşturma
SOLIDWORKS 2026, modelden teknik resim oluşturmayı otomatik hale getiriyor. Sistem, görünümleri, kesitleri ve ölçülendirmeyi model geometrisine göre kendisi oluşturuyor. Bu sayede kullanıcı, görünüm yerleşimi veya görünüm seçimiyle uğraşmadan hızlı bir şekilde teknik resim oluşmaktadır.



2.Yapay Zeka Destekli Tasarım Asistanı : AURA
SOLIDWORKS 2026 ile birlikte gelen AURA, tasarım sürecini gerçek zamanlı olarak analiz eden ve size çalışma bağlamınıza göre öneriler sunan yeni yapay zekâ destekli asistandır.

3.Grafik Yeniden Oluşturma Performansında İyileştirme
Grafik yeniden oluşturma işlemleri artık çok daha hızlı tamamlanıyor. Yeni performans optimizasyonları sayesinde sistem, sadece değişiklik yapılan bileşenleri yeniden hesaplıyor ve gereksiz grafik işlemlerini atlıyor. Bu geliştirme, özellikle büyük montajlarda bekleme sürelerini önemli ölçüde kısaltarak tasarım sürecine hız kazandırıyor.

4.Dosya Özelliklerinden Kesme Listesi Özelliklerine Erişim
Kesim listesi özellikleri (Cut List) artık doğrudan dosya özel özellikleri (File Properties) üzerinden erişilebiliyor. Bu geliştirme sayesinde, kaynaklı gövdelerdeki kesme listesi öğeleri ile dosya düzeyindeki özel özellikler arasında manuel bağlantı kurmaya gerek kalmıyor.
Artık “Malzeme”, “Toplam Uzunluk” veya “Adet” gibi kesme listesi bilgileri doğrudan Özel Özellikler alanında görüntülenebiliyor.

5.SOLIDWORKS Visualize Eklentisi
Artık render almak için SOLIDWORKS’ten çıkmaya gerek yok. Visualize eklentisi artık doğrudan SOLIDWORKS arayüzü içinde çalışıyor ve model üzerinde yaptığın değişiklikler anında render sahnesine yansıyor.

6.Yapı Sistemi Köşe Kırpma İyileştirmeleri
Yapı sistemlerinde köşe birleşimleri (corner treatments) artık daha net önizlenebiliyor ve kullanıcı arayüzünde daha fazla kombinasyon seçeneğiyle doğrudan seçilebiliyor.

7.Kaldırılmış Mesajları Görüntüleme Kısayolu
Ana menüdeki durum çubuğuna bir Kaldırılmış Mesajlar simgesi eklendi. Bu simge, kullanıcıların daha önceden yönlendirme ya da uyarı amaçlı gösterilip “Bir daha gösterme” işaretlenmiş mesajları hızlıca görmesini sağlıyor.

8.Routing Eklentisinde Rota Yolu Geliştirmeleri
Bu özellik sayesinde, önceden çizilmiş bir 2B ya da 3B sketch kullanılarak otomatik yönlendirme (Auto Route) işlemleri daha kontrollü hale geliyor.


9.Silinen Ölçülere Referans Veren Denklemleri Otomatik Temizleme
Silinen bir sketch veya özellik, o öğeye bağlı bir denklem ya da global değişken içeriyorsa önceden bu denklemler manuel olarak temizleniyordu. Artık silme işlemi sırasında çıkan onay penceresinde Denklemleri sil seçeneğiyle ilişkilendirilmiş denklemler tek adımda kaldırılabiliyor. Bu iyileştirme sayesinde modelde tanımsız kalan denklemler nedeniyle oluşabilecek hatalar önlenecek ve tasarım ağacı daha temiz kalacak.

10.Otomatik Ölçü Çizgisi Kırılması
Çizim sayfalarında ölçülendirme çizgilerinin metin veya diğer annotation elemanlarıyla kesişmesi ya da üst üste binmesi artık otomatik olarak algılanıyor ve çizgi kırıkları ekleniyor. Bu sayede çizimler daha okunaklı hale geliyor, ölçü çizgilerinin görünürlüğü artıyor ve detaylandırma hataları azalıyor.


Bu geliştirmeler, tasarım süreçlerinde hız, doğruluk ve verimliliği yeni bir seviyeye taşıyor. SOLIDWORKS 2026 ile mühendislik artık yalnızca daha güçlü değil, daha akıllı bir hale geliyor.




















